Objektdaten
Büro/Praxis
Objektart
5
Zimmer
Objektbeschreibung
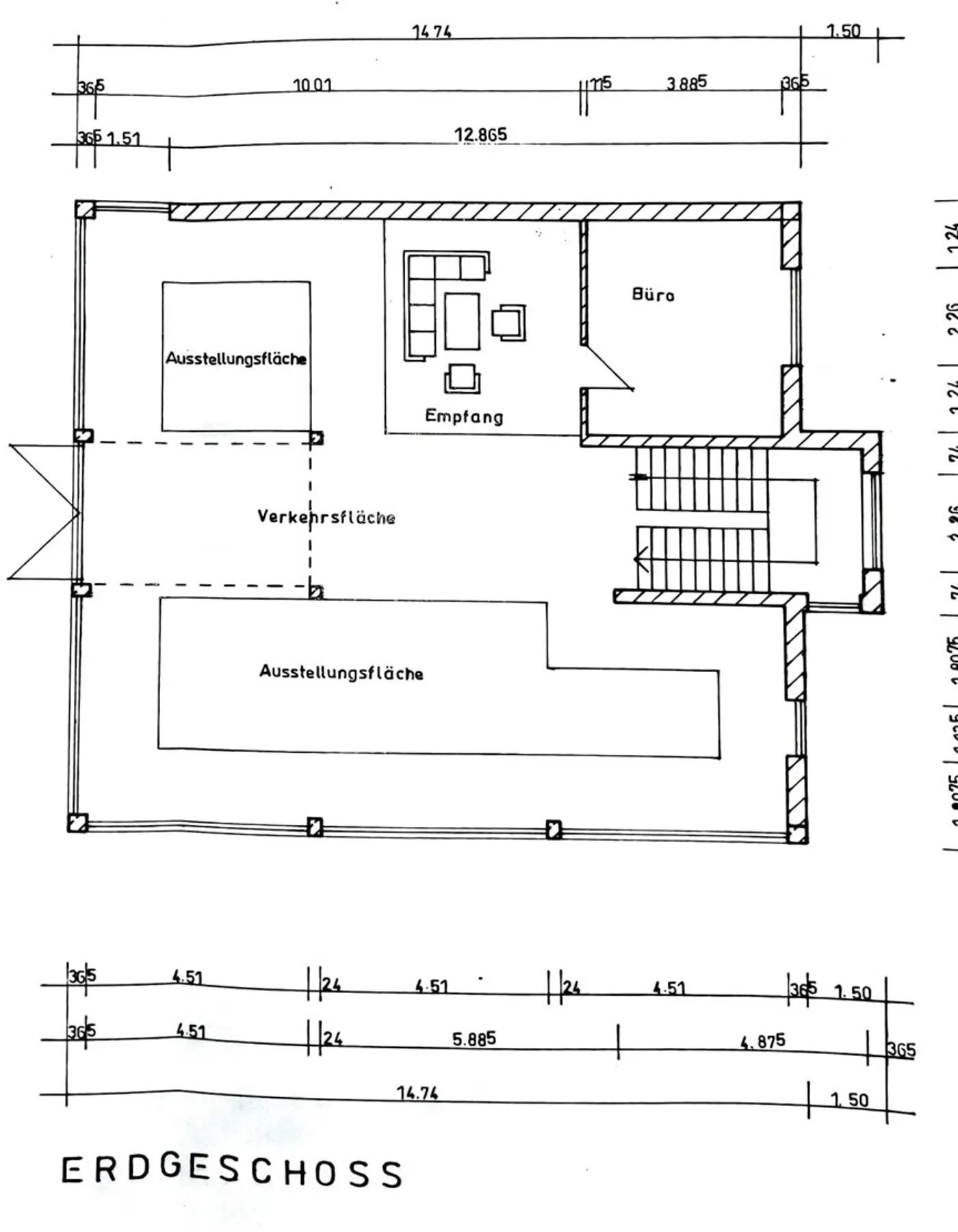
Das ansprechende Bürogebäude bietet großzügige 560 m² auf 3 Ebenen. Zur Ausstattung gehören zwei WCs (jeweils Damen und Herren), eine Lüftungsanlage, Fernwärme sowie eine Fußbodenheizung. Große Fenster sorgen für viel Tageslicht, ergänzt durch Sonnenschutzglas und ein Wärmeverbundsystem, das für eine angenehme Temperatur sorgt.
Lage
Die angebotene Büroetage liegt in Nassenfels, Landkreis Eichstätt, Bayern, und bietet eine gute Anbindung an umliegende Städte. Nassenfels vereint eine hohe Lebensqualität mit einer Mischung aus städtischer Infrastruktur und ländlicher Ruhe. Der Standort ist attraktiv für verschiedene Geschäftszweige, umgeben von traditionellen und modernen Dienstleistungsunternehmen.
Umgebung
85128 Nassenfels
Zur Anzeige der Karte benötigen wir Ihre Zustimmung zu externen Diensten.
Flächen & Räume
3 AngabenGesamtfläche
560 m²
Bürofläche
560 m²
Nutzungsart
Gewerbe
Bau & Energie
1 AngabenBaujahr
2012
Weitere Details
4 AngabenStellplätze
Außenstellplatz (20)
ImmoNr
vmg846
Boden
Stein
Verfügbar ab
nach Vereinbarung
Kosten & Konditionen
Kaltmiete3.950 €
Nebenkosten1.200 €
Heizkosten in NebenkostenJa
Kaution2 MM
ProvisionsfreiNein
ProvisionshinweisNach Abschluss eines rechtswirksamen Mietvertrages ist der Mieter verpflichtet eine Provision in Höhe von 2,38 Monatsmieten inkl. MwSt. an den Makler zu bezahlen.
Außen-Courtage2,38 MM inkl. MwSt
Energieausweis
Energieausweis liegt vorJa
Baujahr laut Energieausweis2012
Wesentlicher EnergieträgerLocalheating

















