Objektdaten
Haus
Objektart
194,0 m²
Wohnfläche
627 m²
Grundstück
5
Zimmer
Objektbeschreibung
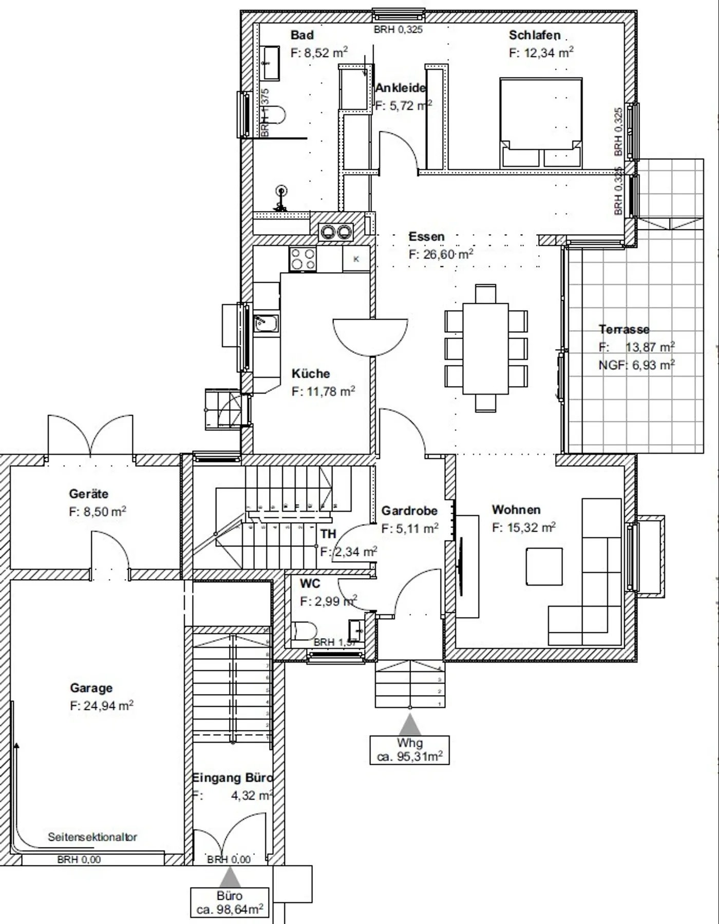
Das moderne Einfamilienhaus befindet sich in ruhiger und beliebter Wohnlage im Westviertel von Ingolstadt und eignet sich gut für die Kombination von Wohnen und Arbeiten. Es wurde 2020 aufwendig und hochwertig kernsaniert. Im Erdgeschoss befindet sich eine 2-Zimmer-Wohnung mit ca. 95 m².
Lage
Die Immobilie befindet sich im westlichen Stadtgebiet von Ingolstadt, unweit des Baggersees in einem gewachsenen und ruhigen Wohnumfeld. Die Umgebung ist überwiegend von Einfamilien- und kleineren Mehrfamilienhäusern geprägt und zählt zu den gefragtesten Wohnlagen der Stadt.
Umgebung
85049 Ingolstadt
Zur Anzeige der Karte benötigen wir Ihre Zustimmung zu externen Diensten.
Ausstattung
- •Luftwärmepumpe
- •Fußbodenheizung
- •PV-Anlage
- •Schön angelegter Garten
Grundrisse
Grundrisse
UG
1 / 3



Flächen & Räume
5 AngabenSchlafzimmer
1
Badezimmer
1
Balkon
Ja
Terrasse
Ja
Nutzungsart
Wohnen
Ausstattung
4 AngabenSeparate WCs
2
Gäste-WC
Ja
Keller
Ja
Kabel / SAT
Ja
Bau & Energie
3 AngabenBaujahr
1980
Bauweise
Massiv
Zustand
Saniert
Weitere Details
5 AngabenImmoNr
vmp2826
Stellplätze
GarageAußenstellplatz
Boden
Fliesen, Parkett
Rollläden
Ja
Verfügbar ab
nach Vereinbarung
Kosten & Konditionen
Kaltmiete3.000 €
Nebenkosten350 €
Heizkosten in NebenkostenNein
Kaution3 MM
ProvisionsfreiJa
Energieausweis
Energieausweis liegt vorJa
Energieeffizienzklasse
B
Endenergiebedarf62 kWh/(m²·a)
Baujahr laut Energieausweis1980
Wesentlicher EnergieträgerLuftwärmepumpe
Gültig bis11.03.2036
























