Objektdaten
Einzelhandel
Objektart
9
Zimmer
Objektbeschreibung
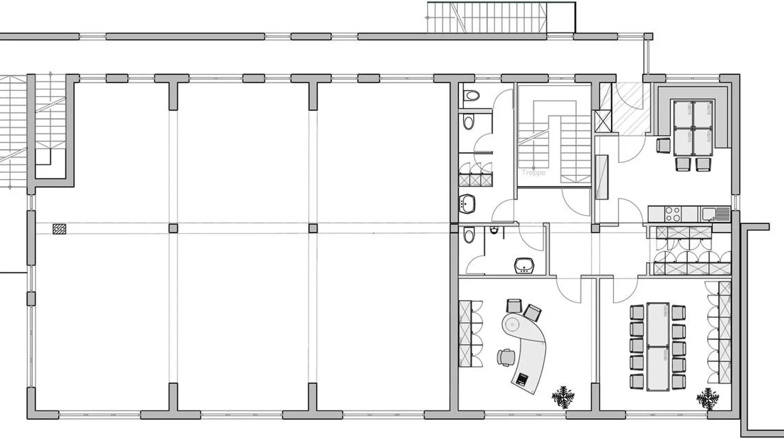
Die Büro-/Ladenfläche liegt im Erdgeschoss und dem 1. Obergeschoss eines Wohn- und Geschäftsgebäudes. Die Fläche hat große Schaufenster und liegt in frequentierter Lage in Ingolstadt Nord, unweit der Innenstadt. Im Erdgeschoss steht dem neuen Mieter eine Laden-/Bürofläche von ca. 280 m² zur Verfügung.
Lage
Dieses tolle Objekt befindet sich im Norden von Ingolstadt, unweit des Grüngürtels in gut frequentierter Lage. Die Altstadt von Ingolstadt ist einfach und schnell zu Fuß erreichbar. Das Einkaufszentrum Westpark, das Klinikum Ingolstadt, die Audi AG sind nur wenige Autominuten entfernt.
Umgebung
85057 Ingolstadt
Zur Anzeige der Karte benötigen wir Ihre Zustimmung zu externen Diensten.
Flächen & Räume
4 AngabenNutzfläche
390 m²
Gesamtfläche
390 m²
Gewerbefläche
390 m²
Nutzungsart
Gewerbe
Ausstattung
1 AngabenSeparate WCs
3
Bau & Energie
4 AngabenBaujahr
1995
Bauweise
Massiv
Zustand
Gepflegt
Heizung
Gasheizung
Weitere Details
5 AngabenStellplätze
Außenstellplatz (9)Tiefgarage (8)
ImmoNr
vmg718
Flexible Raumaufteilung
Ja
Boden
Fliesen
Verfügbar ab
nach Vereinbarung
Kosten & Konditionen
Kaltmiete4.460 €
StellplatzpreisAußenstellplatz (9x): à 25 € (Miete) · Tiefgarage (8x): à 60 € (Miete)
Nebenkosten1.400 €
Heizkosten in NebenkostenJa
Kaution3 MM
ProvisionsfreiNein
ProvisionshinweisNach Abschluss eines rechtswirksamen Mietvertrages ist der Mieter verpflichtet, eine Provision in Höhe von 2,38 Nettomonatsmieten inklusive MwSt. an den Makler zu bezahlen.
Außen-Courtage2,38 Nettomonatsmieten inkl. MwSt.
Energieausweis
Energieausweis liegt vorJa
Baujahr laut Energieausweis1995
Wesentlicher EnergieträgerGasheizung
Gültig bis31.07.2024

















