Objektdaten
Büro/Praxis
Objektart
5
Zimmer
Objektbeschreibung
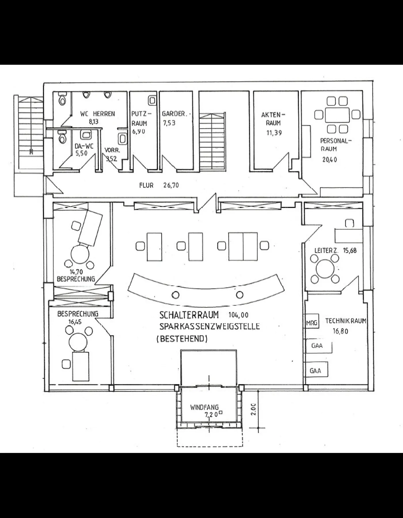
Die Büro- und Ausstellungsfläche im Erdgeschoss eines Bürohauses umfasst rund 245 m² und ist über automatische Schiebetüren zugänglich. Sie ist unterteilt in zwei Einzelbüros, einen Besprechungsraum, zwei Großraumbüros und zwei getrennte WCs.
Lage
Die Fläche befindet sich in einer frequentierten Lage im Nordosten Ingolstadts und ist von der Straße aus sehr gut sichtbar. Sie ist verkehrstechnisch ideal angebunden: Über die nahegelegene Bundesstraße B13 gelangt man schnell sowohl ins Stadtzentrum als auch zur Autobahn A9.
Umgebung
85055 Ingolstadt
Zur Anzeige der Karte benötigen wir Ihre Zustimmung zu externen Diensten.
Grundrisse
Grundrisse
EG
1 / 1

Flächen & Räume
4 AngabenGesamtfläche
245 m²
Gewerbefläche
245 m²
Bürofläche
245 m²
Nutzungsart
Gewerbe
Ausstattung
2 AngabenGäste-WC
Ja
Keller
Ja
Bau & Energie
3 AngabenBaujahr
2000
Bauweise
Massiv
Zustand
Gepflegt
Weitere Details
6 AngabenStellplätze
Außenstellplatz (10)
Verfügbar ab
01.01.2025
ImmoNr
vmg858
Flexible Raumaufteilung
Ja
Boden
Fliesen
Rollläden
Ja
Kosten & Konditionen
Kaltmiete2.700 €
StellplatzpreisAußenstellplatz (10x): à 30 € (Miete)
Nebenkosten735 €
Heizkosten in NebenkostenJa
Kaution3 MM
ProvisionsfreiNein
ProvisionshinweisNach Abschluss eines rechtswirksamen Mietvertrages ist der Mieter verpflichtet eine Provision in Höhe von 2,38 Monatsmieten inkl. MwSt. an den Makler zu bezahlen.
Außen-Courtage2,38 Nettomonatsmieten inkl. MwSt.
Energieausweis
Energieausweis liegt vorJa
Energieeffizienzklasse
D
Energieverbrauch114.8 kWh/(m²·a)
Baujahr laut Energieausweis2000
Wesentlicher EnergieträgerAcidgas
Gültig bis11.02.2028











