Objektdaten
Büro/Praxis
Objektart
7
Zimmer
Objektbeschreibung
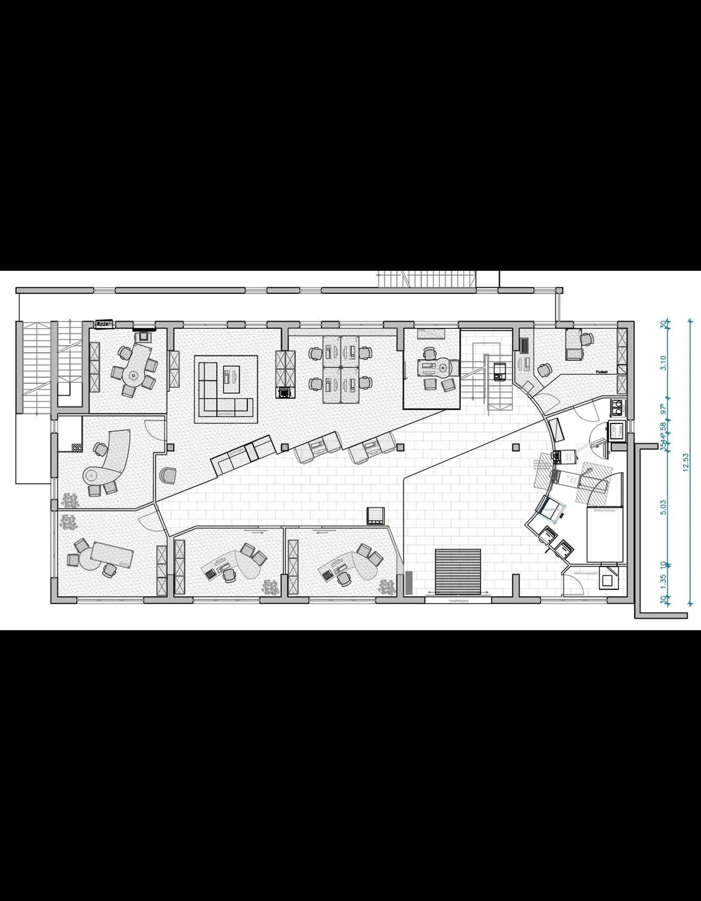
Diese großzügige Gewerbefläche im Erdgeschoss bietet Ihnen 280 m² und Parkmöglichkeiten vor den Räumlichkeiten. Die Fläche ist aktuell in 5 kleinere Büros, ein Großraumbüro und 1 Besprechungszimmer unterteilt. Die Raumgestaltung kann nach Wunsch des Mieters erfolgen.
Lage
Dieses tolle Objekt befindet sich im Norden von Ingolstadt, unweit des Grüngürtels in gut frequentierter Lage. Die Altstadt von Ingolstadt ist einfach und schnell zu Fuß erreichbar. Das Einkaufszentrum Westpark, das Klinikum Ingolstadt, die Audi AG sind nur wenige Autominuten entfernt.
Umgebung
85057 Ingolstadt
Zur Anzeige der Karte benötigen wir Ihre Zustimmung zu externen Diensten.
Ausstattung
- •Klimatisierung
- •Teppichboden
Grundrisse
Grundrisse
EG
1 / 1

Flächen & Räume
5 AngabenNutzfläche
280 m²
Gesamtfläche
280 m²
Gewerbefläche
280 m²
Bürofläche
280 m²
Nutzungsart
Gewerbe
Ausstattung
2 AngabenGäste-WC
Ja
Keller
Ja
Bau & Energie
4 AngabenBaujahr
1995
Bauweise
Massiv
Zustand
Gepflegt
Heizung
Gasheizung, Strom
Weitere Details
6 AngabenStellplätze
Außenstellplatz (9)Tiefgarage (8)
ImmoNr
vmg804
Flexible Raumaufteilung
Ja
Boden
Fliesen
Abstellraum
Ja
Verfügbar ab
nach Vereinbarung
Kosten & Konditionen
Kaltmiete3.360 €
StellplatzpreisAußenstellplatz (9x): à 25 € (Miete) · Tiefgarage (8x): à 60 € (Miete)
Nebenkosten1.400 €
Heizkosten in NebenkostenJa
Kaution3 MM
ProvisionsfreiNein
ProvisionshinweisNach Abschluss eines rechtswirksamen Mietvertrages ist der Mieter verpflichtet, eine Provision in Höhe von 2,38 Nettomonatsmieten inklusive MwSt. an den Makler zu bezahlen.
Außen-Courtage2,38 Nettomonatsmieten inkl. MwSt.
Energieausweis
Energieausweis liegt vorJa
Baujahr laut Energieausweis1995
Wesentlicher EnergieträgerGasheizung
Gültig bis31.07.2024








