
DonauTower Ingolstadt
Moderne und attraktive Büroräume ab 250 m² mieten
Projektüberblick
Ihr neuer Unternehmensstandort
Zwischen historischer Altstadt und modernem Süden erhebt sich der DonauTower als neue Landmarke Ingolstadts. Mit 13 flexiblen Etagen und 12.500 m² Büro- und Geschäftsfläche entstehen zukunftsfähige Arbeitswelten für mittelständische und große Unternehmen.
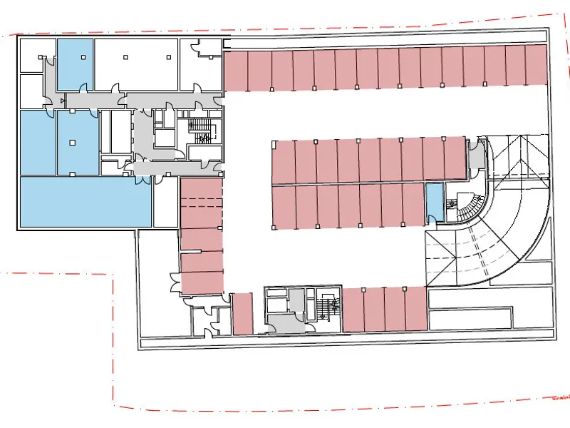
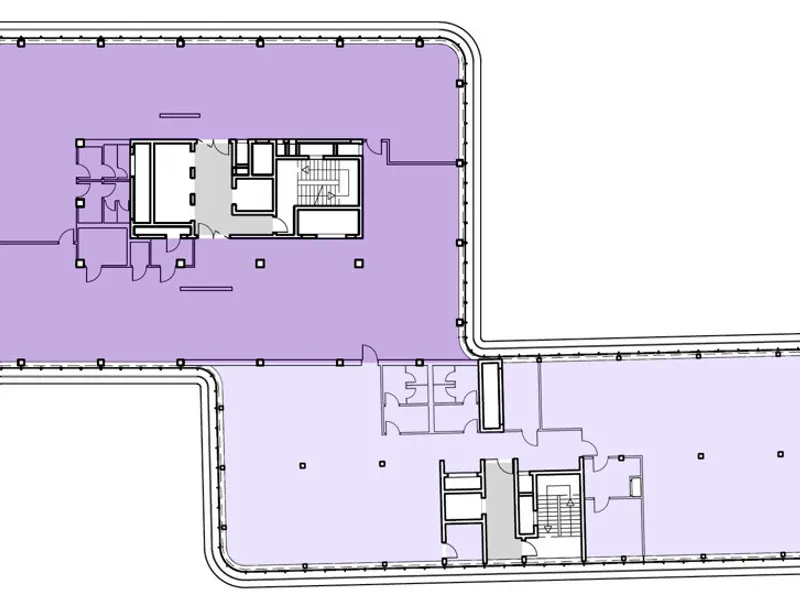
Flexibel teilbare Etagen für maßgeschneiderte Raumkonzepte
Großzügige Fensterfronten für lichtdurchflutete Arbeitswelten
Modernste Haustechnik & intelligente Etagencontroller
Hochwertige Materialien: Naturstein, Sichtbeton & edles Aluminium
Nachhaltige Energieversorgung über integrierte Photovoltaik
DGNB-Gold-Zertifizierung für maximale Effizienz
Panorama-Ausblicke – neue Landmarke in Ingolstadt
Projektstatus
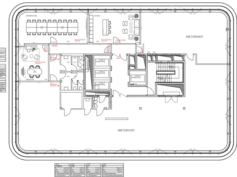
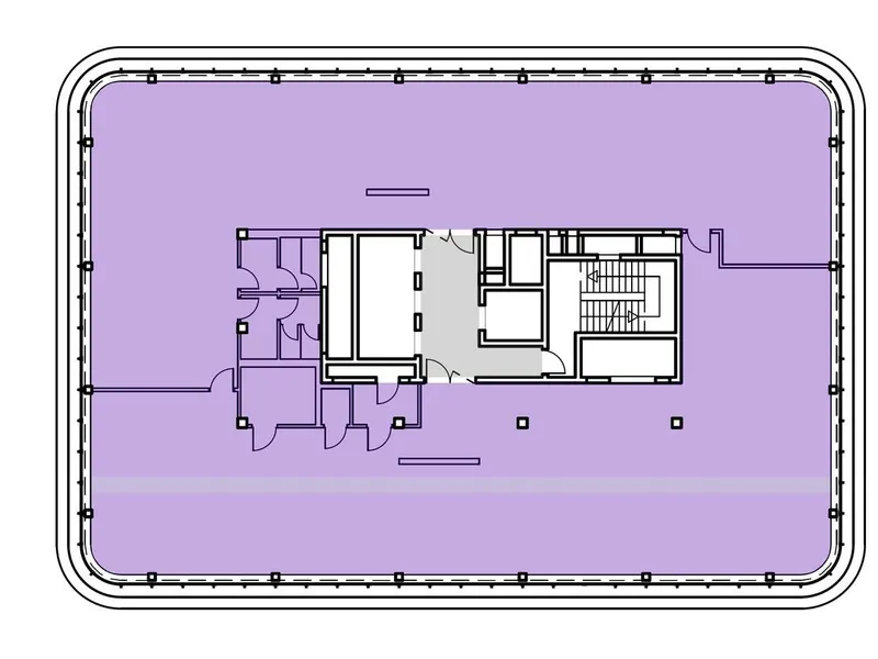
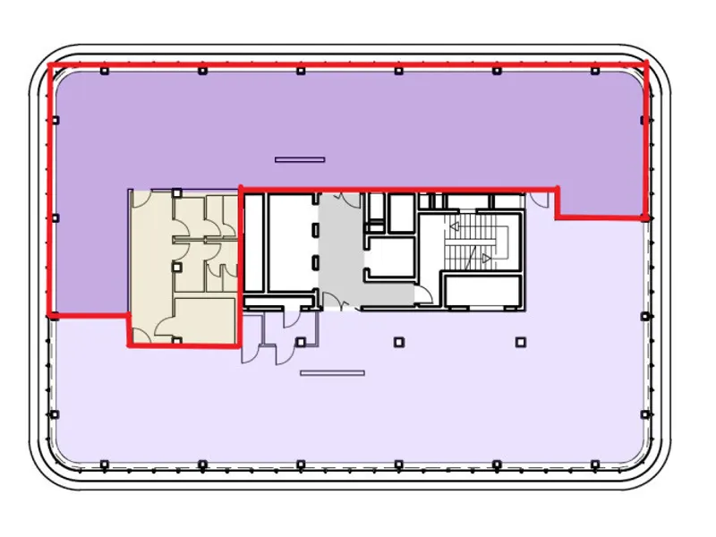
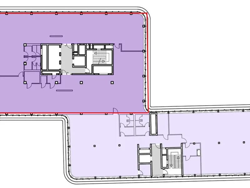
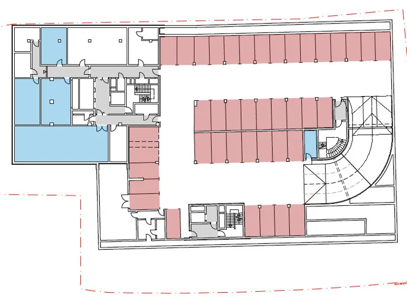
Verfügbare Flächen
8
Büroflächen
7
Gastronomie
1
Büroflächen
Flexibel teilbare Etagen
















Neubau Büroflächen im Donau Tower
85053 Ingolstadt / Ringsee
20.410 € /Monat
1.042 m²

















Hoch hinaus - Büroflächen im Donau Tower
85053 Ingolstadt / Ringsee
11.880 € /Monat
580 m²
















Hoch hinaus - Büroflächen im Donau Tower
85053 Ingolstadt / Ringsee
11.800 € /Monat
579 m²


















Neubau Büroflächen im Donau Tower
85053 Ingolstadt / Ringsee
11.287 € /Monat
590 m²




















Neubau Büroflächen im Donau Tower
85053 Ingolstadt / Ringsee
9.121 € /Monat
479 m²
















Hoch hinaus: Bürofläche im obersten Stockwerk des Donau Towers
85053 Ingolstadt / Ringsee
7.950 € /Monat
375 m²


















Neubau-Büroflächen im Donau Tower
85053 Ingolstadt / Ringsee
5.375 € /Monat
246 m²
Gastronomie








