Objektdaten
Büro/Praxis
Objektart
3
Zimmer
Objektbeschreibung
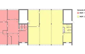
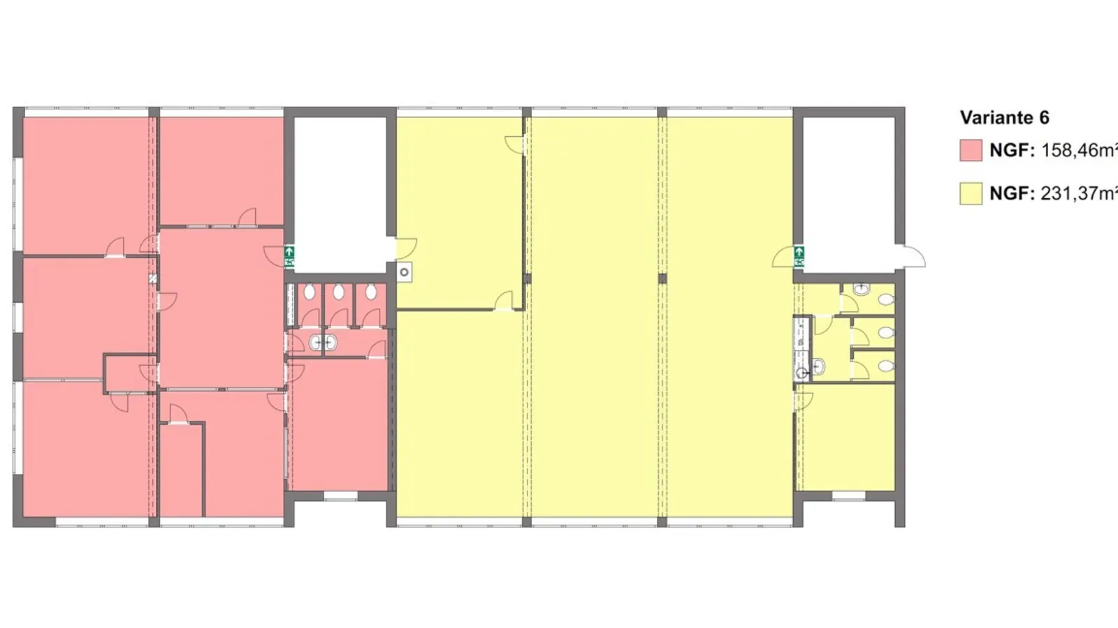
Diese großzügige Bürofläche hat ca. 231m² und befindet sich im 1. Obergeschoss. Sie verfügt über ein Großraumbüro, zwei Einzelbüros und eine Teeküche, sowie ein getrenntes WC. Die Räumlichkeiten sind u. a. mit Teppichboden ausgestattet. Zudem stehen Ihnen 6 Tiefgaragenplätze zur Verfügung (Tiefgaragenstellplatz à 60,00 €).
Lage
Die Immobilie befindet sich in frequentierter und gut sichtbarer Lage direkt an der Neuburger Straße. Die Anbindung an die Innenstadt, das Shopping Center Westpark, sowie die Audi AG und das Klinikum ist als sehr gut zu bezeichnen.
Umgebung
85057 Ingolstadt
Zur Anzeige der Karte benötigen wir Ihre Zustimmung zu externen Diensten.
Flächen & Räume
6 AngabenNutzfläche
231 m²
Gesamtfläche
231 m²
Gewerbefläche
231 m²
Bürofläche
231 m²
Etage
1
Nutzungsart
Gewerbe
Ausstattung
2 AngabenSeparate WCs
3
Keller
Ja
Bau & Energie
3 AngabenBaujahr
1989
Zustand
Gepflegt
Heizung
Gasheizung
Weitere Details
5 AngabenStellplätze
Außenstellplatz (9)Tiefgarage (6)
ImmoNr
vmg723
Flexible Raumaufteilung
Ja
Abstellraum
Ja
Verfügbar ab
nach Vereinbarung
Kosten & Konditionen
Kaltmiete2.657 €
StellplatzpreisAußenstellplatz (9x): à 40 € (Miete) · Tiefgarage (6x): à 60 € (Miete)
Nebenkosten480 €
Heizkosten in NebenkostenJa
Kaution3 MM
ProvisionsfreiNein
ProvisionshinweisNach Abschluss eines rechtswirksamen Mietvertrages ist vom Mieter eine Provision von 2,38 Netto-Monatsmieten inkl. MwSt. an den Makler zu bezahlen.
Außen-Courtage2,38 Nettomonatsmieten inkl. MwSt.
Energieausweis
Energieausweis liegt vorJa
Baujahr laut Energieausweis1989
Wesentlicher EnergieträgerGasheizung
Gültig bis07.12.2031










