Objektdaten
Büro/Praxis
Objektart
9
Zimmer
Objektbeschreibung
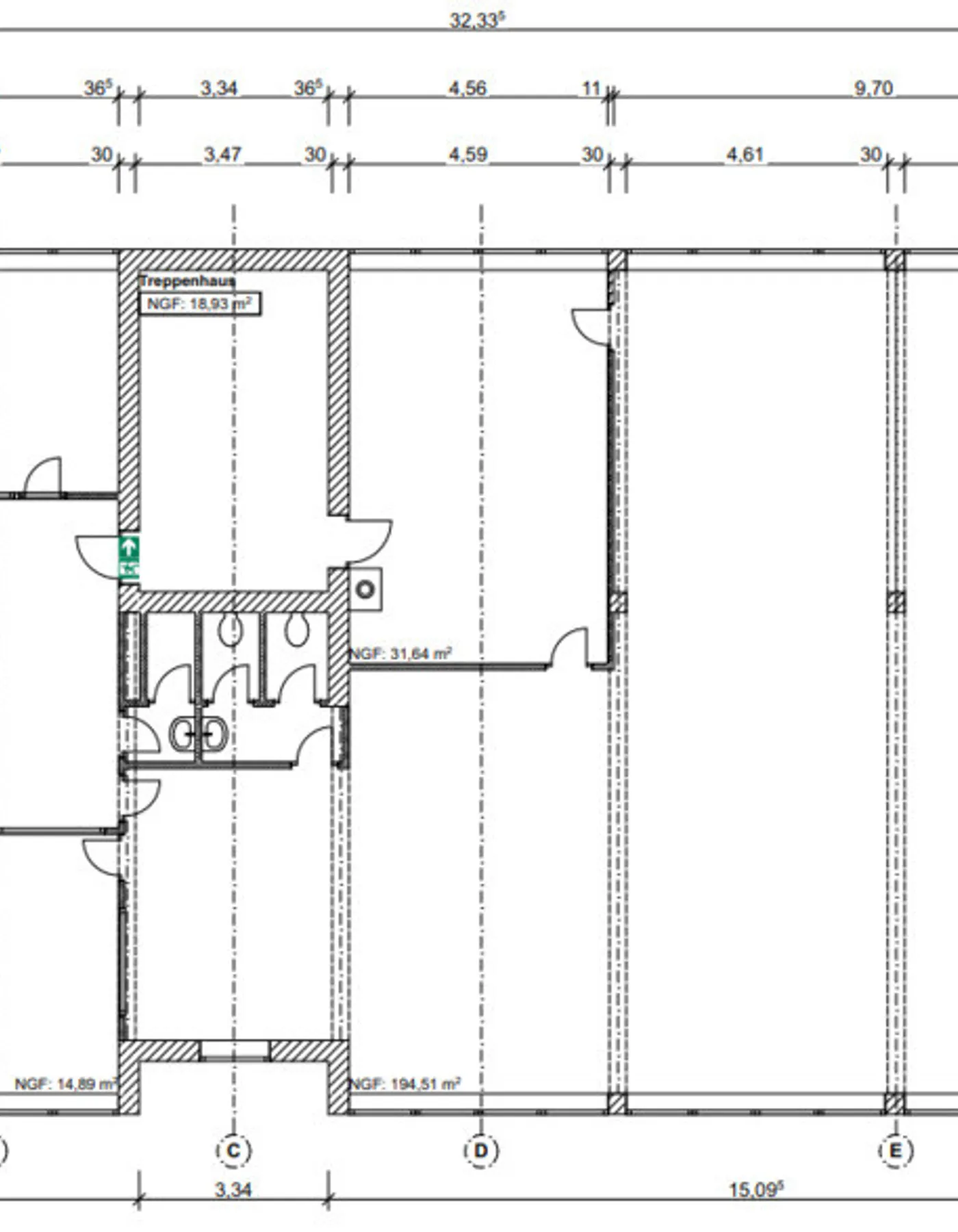
Diese attraktive, ca. 400 m² große Gewerbefläche befindet sich im 1. Obergeschoss und ist als Bürofläche nutzbar. Sie verfügt über ein Großraumbüro, weitere 8 Einzelbüros und vier getrennte WCs. Die Einzelbüros und der Serverraum sind klimatisiert. Die Räumlichkeiten sind u. a. mit Teppichboden und weißen Kunststofffenstern ausgestattet.
Lage
Die Immobilie befindet sich in frequentierter und gut sichtbarer Lage direkt an der Neuburger Straße. Die Anbindung an die Innenstadt, das Shopping Center Westpark, sowie die Audi AG und das Klinikum ist als sehr gut zu bezeichnen.
Umgebung
85057 Ingolstadt
Zur Anzeige der Karte benötigen wir Ihre Zustimmung zu externen Diensten.
Flächen & Räume
5 AngabenNutzfläche
400 m²
Gesamtfläche
400 m²
Bürofläche
400 m²
Etage
1
Nutzungsart
Gewerbe
Ausstattung
1 AngabenKeller
Ja
Bau & Energie
3 AngabenBaujahr
1989
Bauweise
Massiv
Heizung
Gasheizung, Strom
Weitere Details
5 AngabenTeilbar ab
130 m²
Stellplätze
Außenstellplatz (15)Tiefgarage (10)
ImmoNr
vmg614
Flexible Raumaufteilung
Ja
Verfügbar ab
nach Vereinbarung
Kosten & Konditionen
Kaltmiete4.200 €
StellplatzpreisAußenstellplatz (15x): à 40 € (Miete) · Tiefgarage (10x): à 60 € (Miete)
Nebenkosten800 €
Heizkosten in NebenkostenJa
Kaution3 MM + MwSt.
ProvisionsfreiNein
ProvisionshinweisNach Abschluss eines rechtswirksamen Mietvertrages ist vom Mieter eine Provision von 2,38 Netto-Monatsmieten inkl. MwSt. an den Makler zu bezahlen.
Außen-Courtage2,38 Nettomonatsmieten inkl. MwSt.
Energieausweis
Energieausweis liegt vorJa
Baujahr laut Energieausweis1989
Wesentlicher EnergieträgerGasheizung
Gültig bis07.12.2031

















