Objektdaten
Haus
Objektart
113 m²
Wohnfläche
429 m²
Grundstück
4
Zimmer
Objektbeschreibung
Dieses charmante Reihenendhaus in zentraler Lage von Wettstetten wurde im Jahr 1982 errichtet und 1993 um einen massiven Anbau mit Garage und zusätzlichem Stauraum erweitert. Die Immobilie eignet sich ideal für Käufer mit handwerklichem Geschick und einem großen Platzbedarf. Derzeit ist das Erdgeschoss mit ca.
Lage
Das Objekt befindet sich in einem gewachsenen Wohngebiet von Wettstetten, einer beliebten Gemeinde im nördlichen Umland von Ingolstadt. Die Lage ist verkehrsgünstig und gut angebunden – Einkaufsmöglichkeiten, Schulen und Kindergärten sind ebenso schnell erreichbar wie die Stadtgrenze zu Ingolstadt.
Umgebung
85139 Wettstetten
Zur Anzeige der Karte benötigen wir Ihre Zustimmung zu externen Diensten.
Ausstattung
- •Reihenendhaus mit Erweiterungs- und Entwicklungspotenzial sowie großem Grundstück
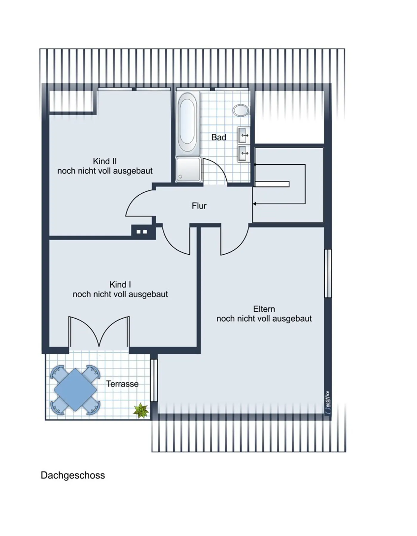
- •ca. 50 m² Wohnfläche im Erdgeschoss aktuell ausgebaut genau wie Teile des Dachgeschosses, die jedoch mit dem restlichen Dachgeschoss-Ausbau komfortabel auf 113 m² erweitert werden kann.
- •Erdgeschoss mit funktionaler Aufteilung und Zugang zur Terrasse
- •Dachgeschoss mit Loggia und Bad
Grundrisse
Grundrisse
Grundriss Erdgeschoss
1 / 4




Flächen & Räume
4 AngabenBadezimmer
1
Terrasse
Ja
Loggia
Ja
Nutzungsart
Wohnen
Ausstattung
4 AngabenSeparate WCs
1
Gäste-WC
Ja
Keller
Ja
Starkstrom
Ja
Bau & Energie
5 AngabenBaujahr
1982
Bauweise
Massiv
Zustand
Gepflegt
Heizung
Öl
Kamin
Ja
Weitere Details
5 AngabenStellplätze
Garage (2)
ImmoNr
vkp1736
Flexible Raumaufteilung
Ja
Rollläden
Ja
Verfügbar ab
ab sofort
Kosten & Konditionen
Kaufpreis450.000 €
ProvisionsfreiNein
ProvisionshinweisNach Abschluss eines rechtswirksamen Kaufvertrages ist der Käufer verpflichtet eine Provision in Höhe von 3,57 % inkl. MwSt. vom notariellen Kaufpreis an den Makler zu bezahlen.
Außen-Courtage3,57% inkl. MwSt.
Energieausweis
Energieausweis liegt vorJa
Energieeffizienzklasse
F
Energieverbrauch169.3 kWh/(m²·a)
Baujahr laut Energieausweis1982
Wesentlicher EnergieträgerÖl
Gültig bis11.02.2036



























