Objektdaten
Büro/Praxis
Objektart
5
Zimmer
Objektbeschreibung
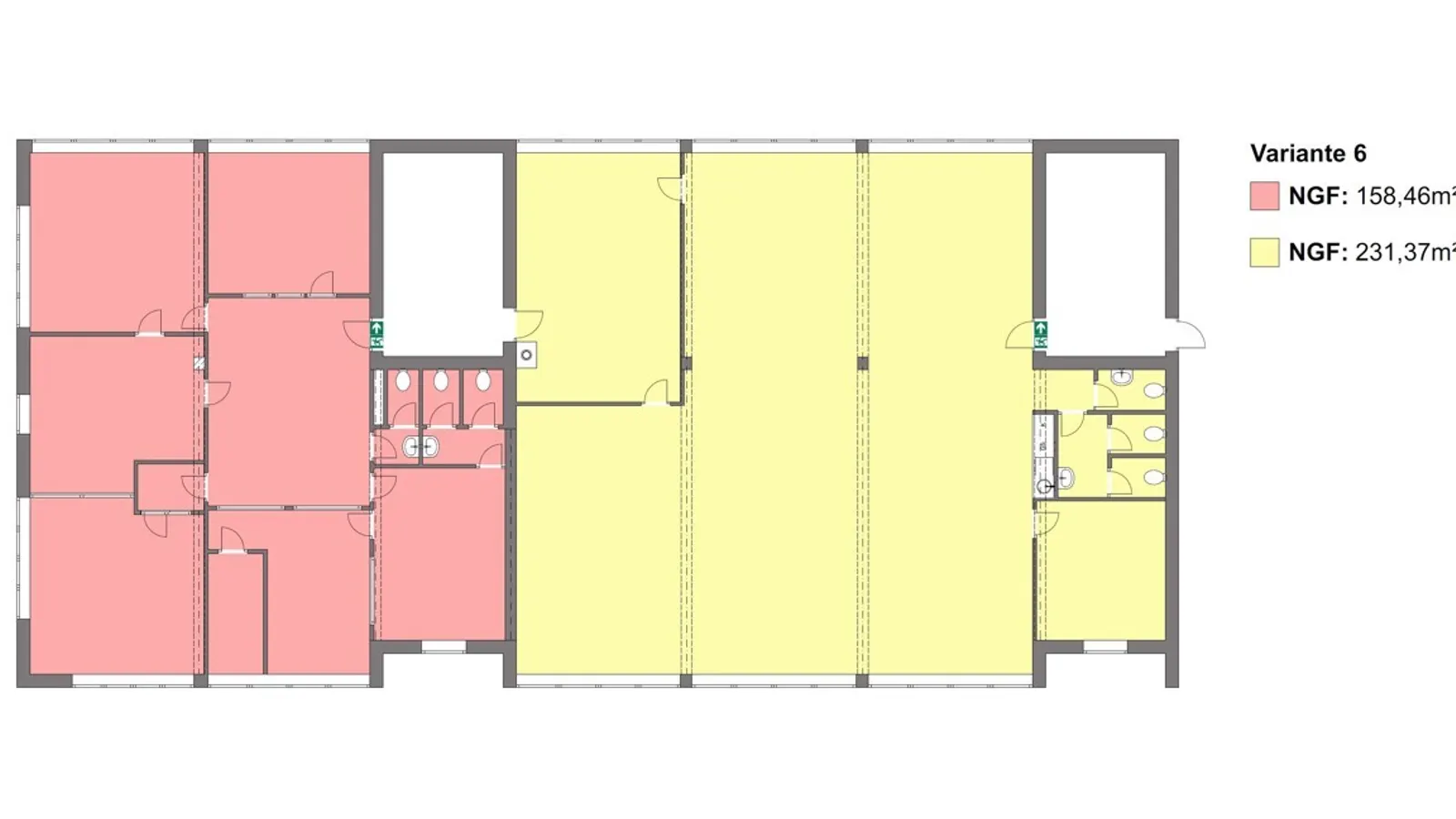
Diese attraktive Bürofläche hat ca. 160 m² und befindet sich im 1. Obergeschoss. Sie verfügt über 5 Einzelbüros und zwei getrennte WCs. Die Einzelbüros und der Serverraum sind klimatisiert. Die Räumlichkeiten sind u. a. mit Teppichboden ausgestattet.
Lage
Die Immobilie befindet sich in frequentierter und gut sichtbarer Lage direkt an der Neuburger Straße. Die Anbindung an die Innenstadt, das Shopping Center Westpark, sowie die Audi AG und das Klinikum ist als sehr gut zu bezeichnen.
Umgebung
85057 Ingolstadt
Zur Anzeige der Karte benötigen wir Ihre Zustimmung zu externen Diensten.
Flächen & Räume
6 AngabenNutzfläche
160 m²
Gesamtfläche
160 m²
Gewerbefläche
160 m²
Bürofläche
160 m²
Etage
1
Nutzungsart
Gewerbe
Ausstattung
2 AngabenSeparate WCs
2
Keller
Ja
Bau & Energie
4 AngabenBaujahr
1989
Bauweise
Massiv
Zustand
Gepflegt
Heizung
Gasheizung
Weitere Details
5 AngabenStellplätze
Außenstellplatz (6)Tiefgarage (4)
ImmoNr
vmg722
Flexible Raumaufteilung
Ja
Abstellraum
Ja
Verfügbar ab
nach Vereinbarung
Kosten & Konditionen
Kaltmiete1.840 €
StellplatzpreisAußenstellplatz (6x): à 40 € (Miete) · Tiefgarage (4x): à 60 € (Miete)
Nebenkosten320 €
Heizkosten in NebenkostenJa
Kaution3 MM
ProvisionsfreiNein
ProvisionshinweisNach Abschluss eines rechtswirksamen Mietvertrages ist vom Mieter eine Provision von 2,38 Netto-Monatsmieten inkl. MwSt. an den Makler zu bezahlen.
Außen-Courtage2,38 Nettomonatsmieten inkl. MwSt.
Energieausweis
Energieausweis liegt vorJa
Baujahr laut Energieausweis1989
Gültig bis07.12.2031












