Objektdaten
Haus
Objektart
242 m²
Wohnfläche
801 m²
Grundstück
6
Zimmer
Objektbeschreibung
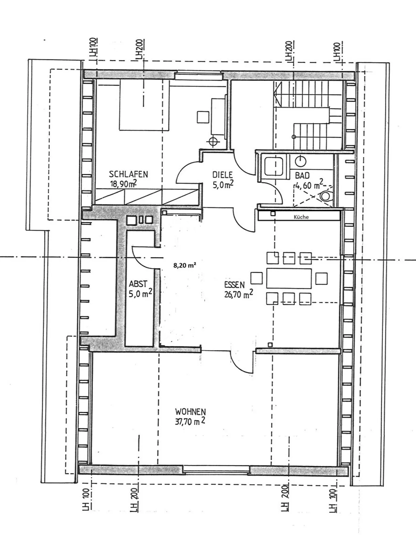
Dieses großzügige Einfamilienhaus überzeugt durch seinen durchdachten Grundriss und vielseitige Nutzungsmöglichkeiten. Die ca. 242 m² Wohnfläche, verteilen sich auf ca. 140 m² im Erdgeschoss und ca. 100 m² im Dachgeschoss, das auch als separate Wohneinheit nutzbar ist.
Lage
Die Immobilie liegt in einem ruhigen und gewachsenen Wohngebiet im Westen von Ingolstadt, das besonders bei Familien sehr beliebt ist. Die Nachbarschaft ist geprägt von Einfamilienhäusern und bietet eine angenehme, nachbarschaftliche Atmosphäre.
Umgebung
85049 Ingolstadt / Ingolstadt
Zur Anzeige der Karte benötigen wir Ihre Zustimmung zu externen Diensten.
Ausstattung
- •Gas-Heizung 1999
- •DG-Ausbau ca. 1997
Grundrisse
Grundrisse
Grundriss DG
1 / 2


Flächen & Räume
5 AngabenSchlafzimmer
5
Badezimmer
2
Einliegerwohnung
Ja
Terrasse
Ja
Nutzungsart
Wohnen
Ausstattung
4 AngabenSeparate WCs
1
Gäste-WC
Ja
Keller
Ja
Kabel / SAT
Ja
Bau & Energie
4 AngabenBaujahr
1977
Bauweise
Massiv
Heizung
Gasheizung
Kamin
Ja
Weitere Details
6 AngabenImmoNr
vkp1762
Flexible Raumaufteilung
Ja
Stellplätze
Garage
Boden
Estrich, Parkett
Rollläden
Ja
Verfügbar ab
ab sofort
Kosten & Konditionen
Kaufpreis850.000 €
ProvisionsfreiNein
ProvisionshinweisNach Abschluss eines rechtswirksamen Kaufvertrages ist der Käufer verpflichtet eine Provision in Höhe von 3,57 % inkl. MwSt. vom notariellen Kaufpreis an den Makler zu bezahlen.
Außen-Courtage3,57 % inkl. MwSt.
Energieausweis
Energieausweis liegt vorJa
Energieeffizienzklasse
E
Energieverbrauch139.72 kWh/(m²·a)
Baujahr laut Energieausweis1977
Wesentlicher EnergieträgerGasheizung
Gültig bis09.04.2036
















