Objektdaten
Büro/Praxis
Objektart
2
Zimmer
Objektbeschreibung
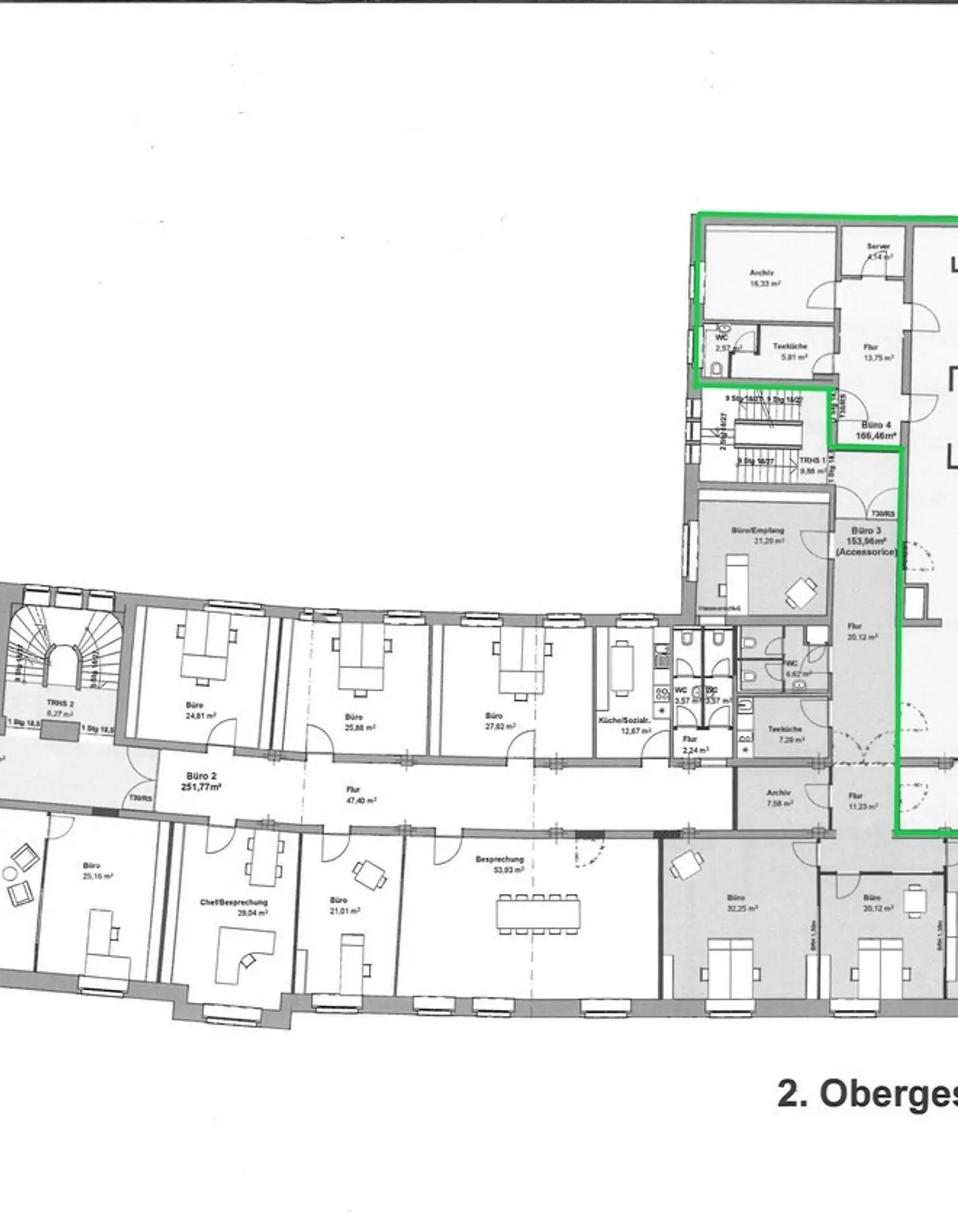
Das Büro befindet sich im 2. Obergeschoss des Postgebäudes inmitten der Innenstadt. Aktuell ist das Büro in ein Großraumbüro unterteilt, sodass Sie vielseitige Gestaltungsmöglichkeiten haben. Sie haben die Möglichkeit bis zu 2 Stellplätze im Innenhof (à 100,00 €) hinzu zu mieten. Zum Büro gehört ein Kellerraum.
Lage
Das Büro befindet sich direkt im Stadtzentrum unweit der Fußgängerzone. Das Stadtzentrum Ingolstadts zeichnet sich durch eine sehr gute Verkehrsanbindung, sowie nahe gelegene Parkplätze aus. Hier sind besonders die Tiefgarage am Stadttheater und der Volksfestplatz zu erwähnen. Die nächste Autobahnauffahrt ist in ca. 10 min zu erreichen.
Umgebung
85049 Ingolstadt
Zur Anzeige der Karte benötigen wir Ihre Zustimmung zu externen Diensten.
Flächen & Räume
6 AngabenNutzfläche
166,7 m²
Gesamtfläche
166,7 m²
Gewerbefläche
166,7 m²
Bürofläche
166,7 m²
Etage
2
Nutzungsart
Gewerbe
Ausstattung
2 AngabenSeparate WCs
1
Keller
Ja
Bau & Energie
1 AngabenBaujahr
1929
Weitere Details
5 AngabenStellplätze
Außenstellplatz (2)
ImmoNr
vmg633
Flexible Raumaufteilung
Ja
Boden
Laminat
Verfügbar ab
nach Vereinbarung
Kosten & Konditionen
Kaltmiete2.055 €
StellplatzpreisAußenstellplatz (2x): à 100 € (Miete)
Nebenkosten350 €
Heizkosten in NebenkostenJa
Kaution3 MM
ProvisionsfreiNein
ProvisionshinweisNach Abschluss eines rechtswirksamen Mietvertrages ist der Mieter verpflichtet, eine Provision in Höhe von 2,38 Nettomonatsmieten inkl. MwSt. an den Makler zu bezahlen.
Außen-Courtage2,38 Nettomonatsmieten inkl. MwSt.
Energieausweis
Energieausweis liegt vorJa
Baujahr laut Energieausweis1929
Wesentlicher EnergieträgerFernwärme







