Objektdaten
Industriehalle
Objektart
Objektbeschreibung
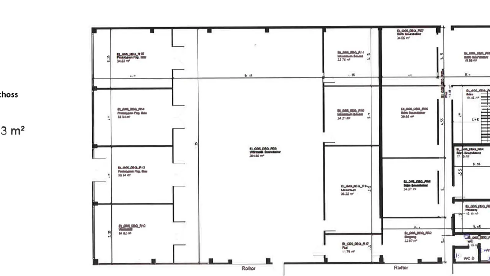
Das angebotene Gewerbeobjekt vereint eine großzügige Hallenfläche mit einem flexibel nutzbaren Bürobereich. Die Immobilie wurde im Jahr 1973 erbaut und präsentiert sich in einem gepflegten Zustand. Derzeit umfasst die Gesamtfläche ca. 720 m², wovon ca. 520 m² auf die Halle und ca.
Lage
Das Objekt befindet sich in Gaimersheim, einer wirtschaftlich starken Gemeinde im Landkreis Eichstätt, nur wenige Kilometer nordwestlich von Ingolstadt.
Umgebung
85080 Gaimersheim
Zur Anzeige der Karte benötigen wir Ihre Zustimmung zu externen Diensten.
Ausstattung
- •Gesamtfläche ca. 720 m² (ca. 520 m² Halle + ca. 200 m² Büro/Küche)
- •Flexible Raumaufteilung dank Trockenbauwänden
- •Rückbau des Büros in Hallenfläche möglich
- •Zwei kürzlich modernisierte Sektionaltore
- •Zahlreiche Außenstellplätze, teilweise mit E-Ladesäulen
- •Zentrale Lüftung
- •Gasheizung
- •Einbauküche vorhanden
- •Kaltmiete: 5.964 Euro/Monat
- •Bezugsfrei ab ca. Oktober / November 2025
Flächen & Räume
3 AngabenGesamtfläche
720 m²
Gewerbefläche
720 m²
Nutzungsart
Gewerbe
Bau & Energie
1 AngabenBaujahr
1973
Weitere Details
2 AngabenImmoNr
vmg840
Verfügbar ab
nach Vereinbarung
Kosten & Konditionen
Kaltmiete5.964 €
Nebenkosten300 €
Heizkosten in NebenkostenNein
ProvisionsfreiNein
ProvisionshinweisNach Abschluss eines rechtswirksamen Mietvertrages, ist der Mieter verpflichtet eine Provision in Höhe von 2,38 Monatsmieten inkl. MwSt. an den Makler zu bezahlen.
Außen-Courtage2,38 MM inkl. MwSt
Energieausweis
Energieausweis liegt vorJa














