Objektdaten
Büro/Praxis
Objektart
Objektbeschreibung
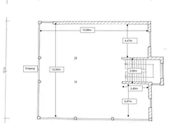
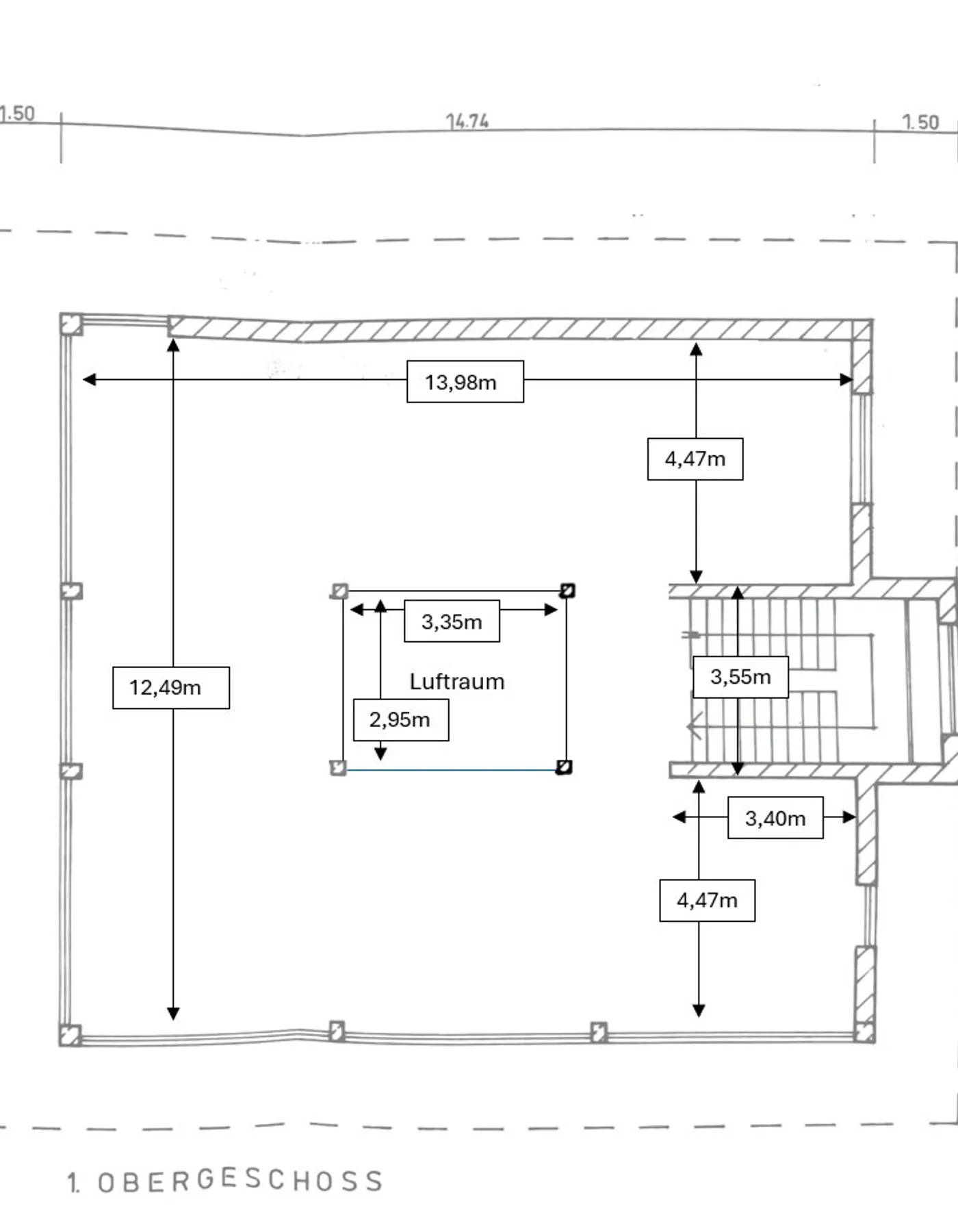
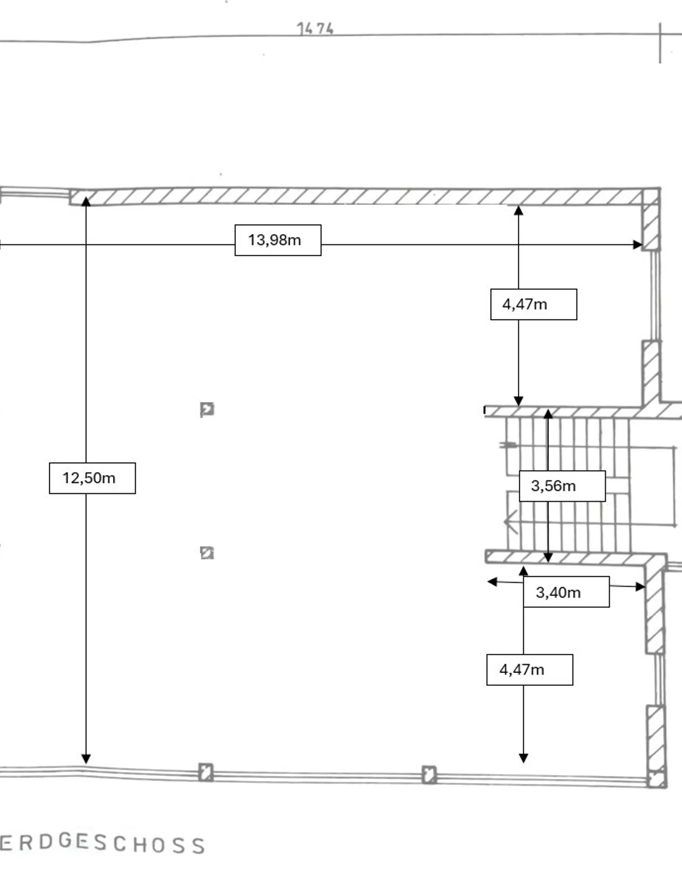
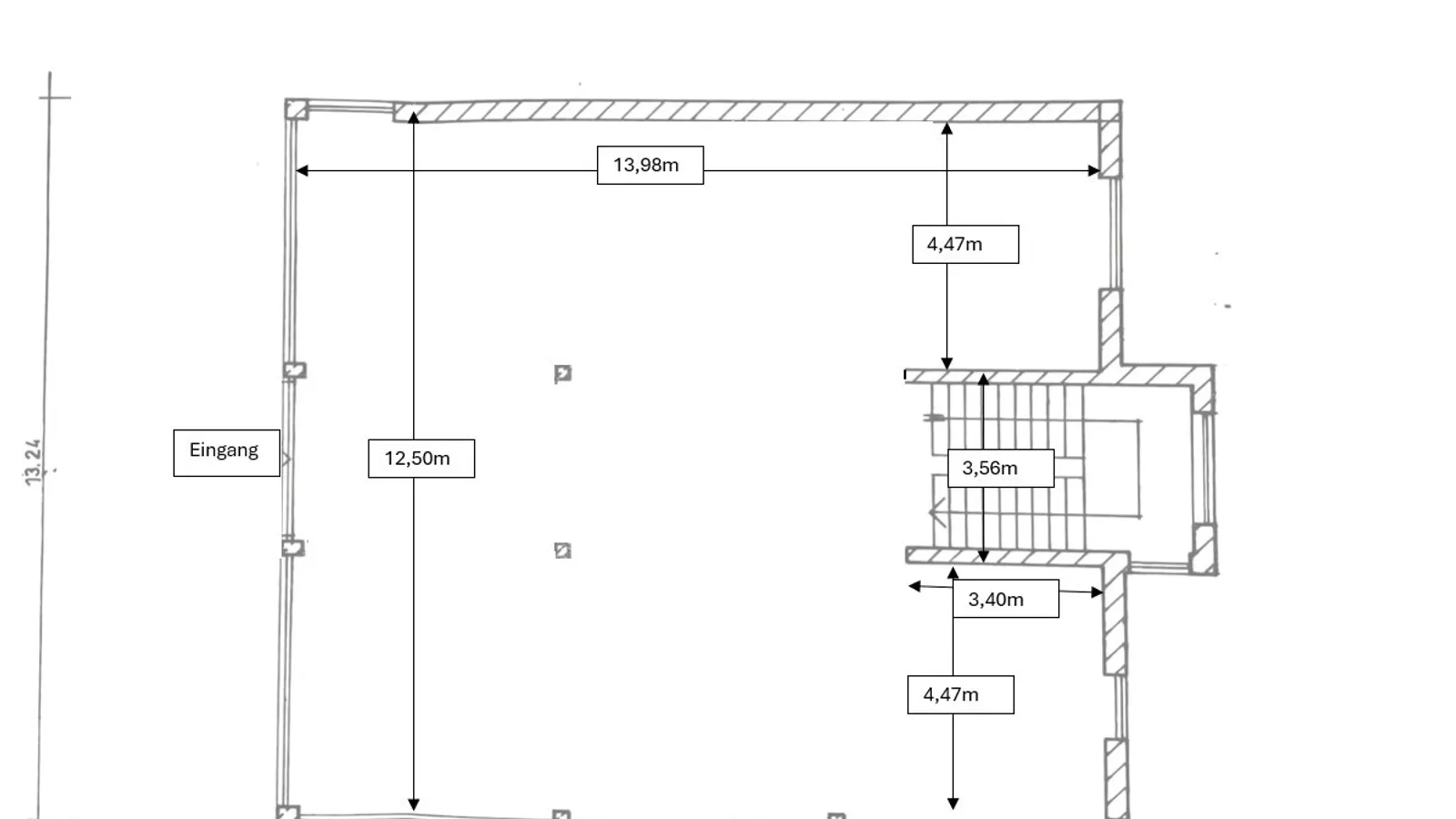
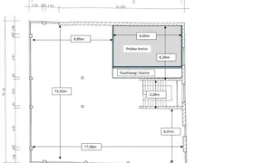
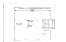
Die großzügige Halle mit einer Nutzfläche von ca. 880 m² überzeugt durch eine Deckenhöhe von ca. 4 Metern und bietet flexible Nutzungsmöglichkeiten für Lager, Produktion oder Werkstattarbeiten.
Lage
Die angebotene Halle mit Bürogebäude liegt in Nassenfels, Landkreis Eichstätt und bietet eine gute Anbindung an umliegende Städte. Nassenfels vereint eine hohe Lebensqualität mit einer Mischung aus städtischer Infrastruktur und ländlicher Ruhe. Der Standort ist attraktiv für verschiedene Geschäftszweige, umgeben von traditionellen und modernen Dienstleistungsunternehmen.
Umgebung
85128 Nassenfels
Zur Anzeige der Karte benötigen wir Ihre Zustimmung zu externen Diensten.
Flächen & Räume
4 AngabenGesamtfläche
1.440 m²
Gewerbefläche
1.440 m²
Bürofläche
560 m²
Nutzungsart
Gewerbe
Bau & Energie
2 AngabenBaujahr
1997
Zustand
Gepflegt
Weitere Details
4 AngabenStellplätze
Außenstellplatz (20)
ImmoNr
vmg848
Boden
Estrich, Stein
Verfügbar ab
nach Vereinbarung
Kosten & Konditionen
Kaltmiete7.850 €
Nebenkosten2.450 €
Heizkosten in NebenkostenJa
Kaution2 MM
ProvisionsfreiNein
ProvisionshinweisNach Abschluss eines rechtswirksamen Mietvertrages ist der Mieter verpflichtet eine Provision in Höhe von 2,38 Monatsmieten inkl. MwSt. an den Makler zu bezahlen.
Außen-Courtage2,38 MM inkl. MwSt
Energieausweis
Energieausweis liegt vorNein
Baujahr laut Energieausweis2012
























